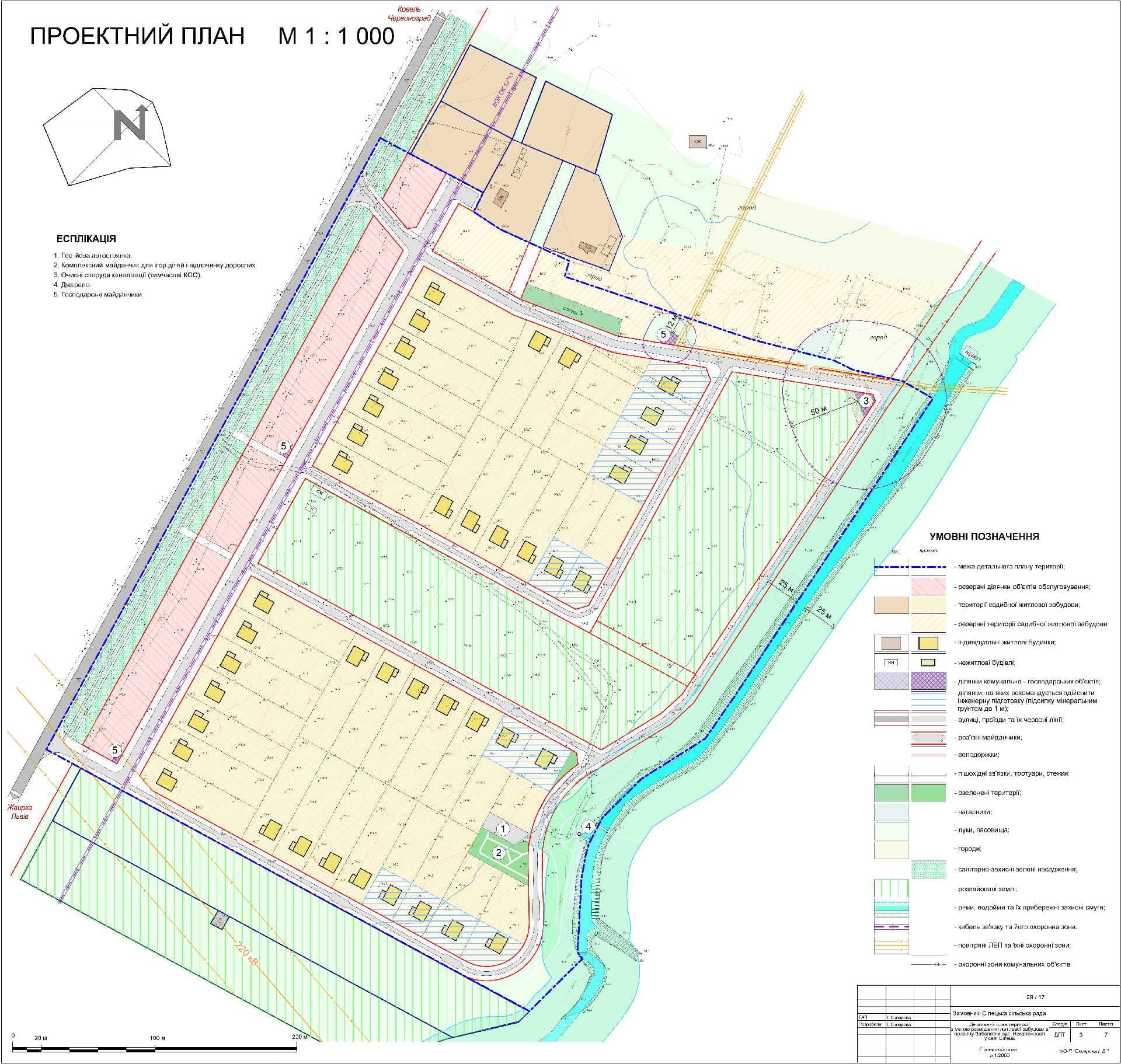
Внесення змін до Детального план території з метою розміщення житлової забудови в присілку Заболотня вул. Незалежності у селі СілецьВнесення змін до Детального план території з метою розміщення житлової забудови в присілку Заболотня вул. Незалежності у селі Сілець
Файли:
