Генеральний план села Добрячин
Поділитись
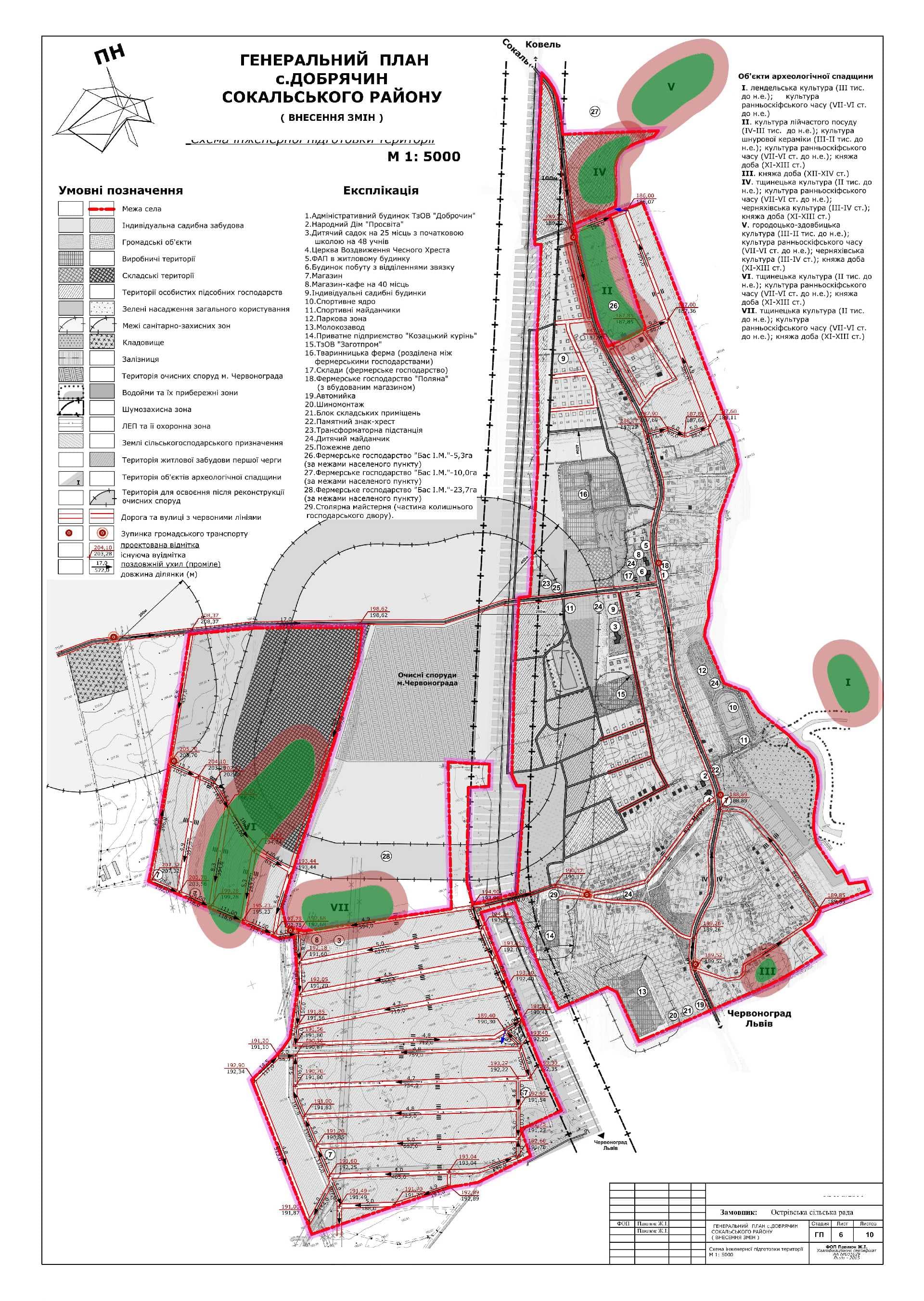
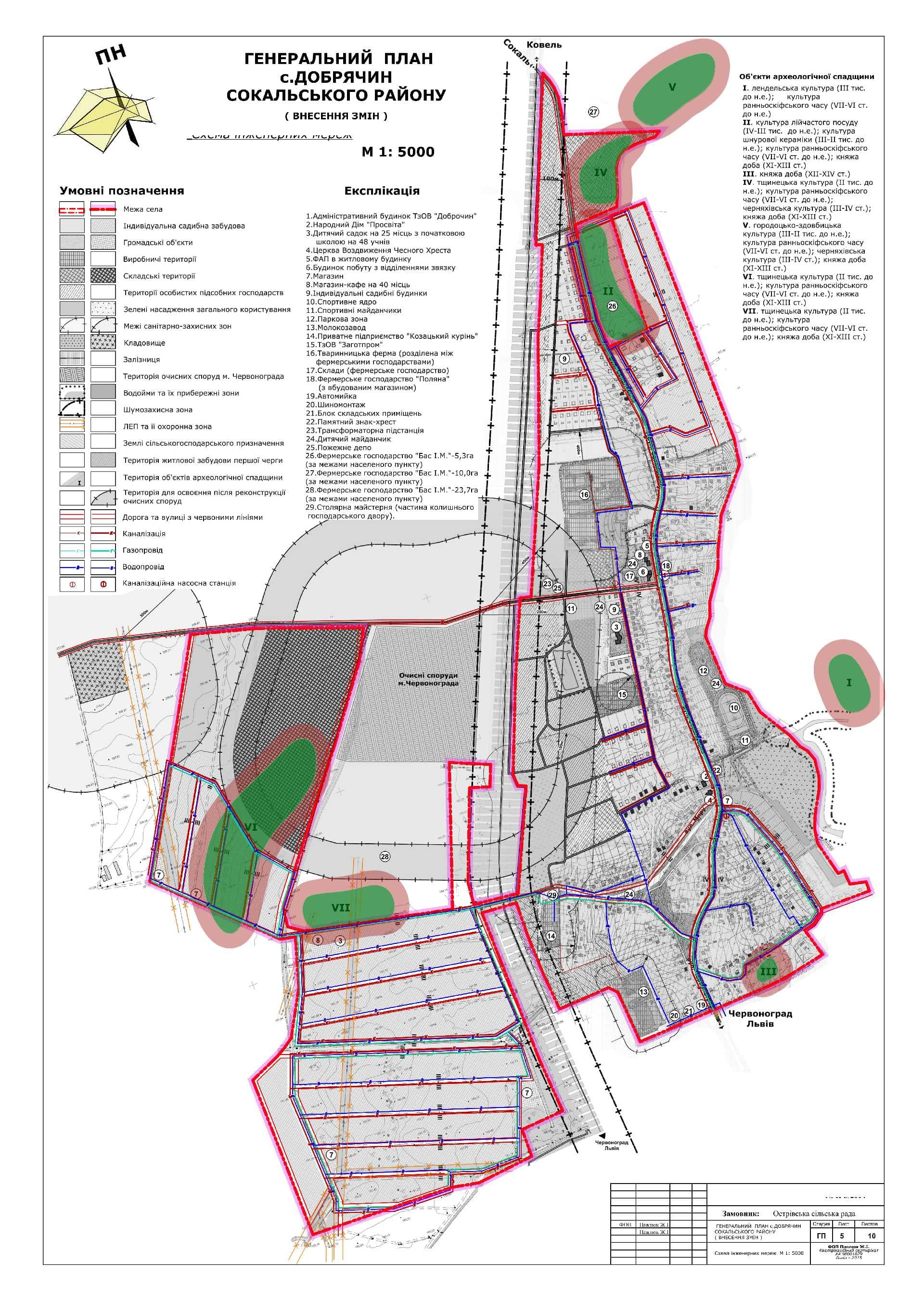
Генеральний план села Добрячин затверджений рішенням Острівської сільської ради від 21.12.2016 № 259
Файли:
Розмір тексту
Відступи між буквами
Колір
Анімація
Інше
Генеральний план села Добрячин затверджений рішенням Острівської сільської ради від 21.12.2016 № 259