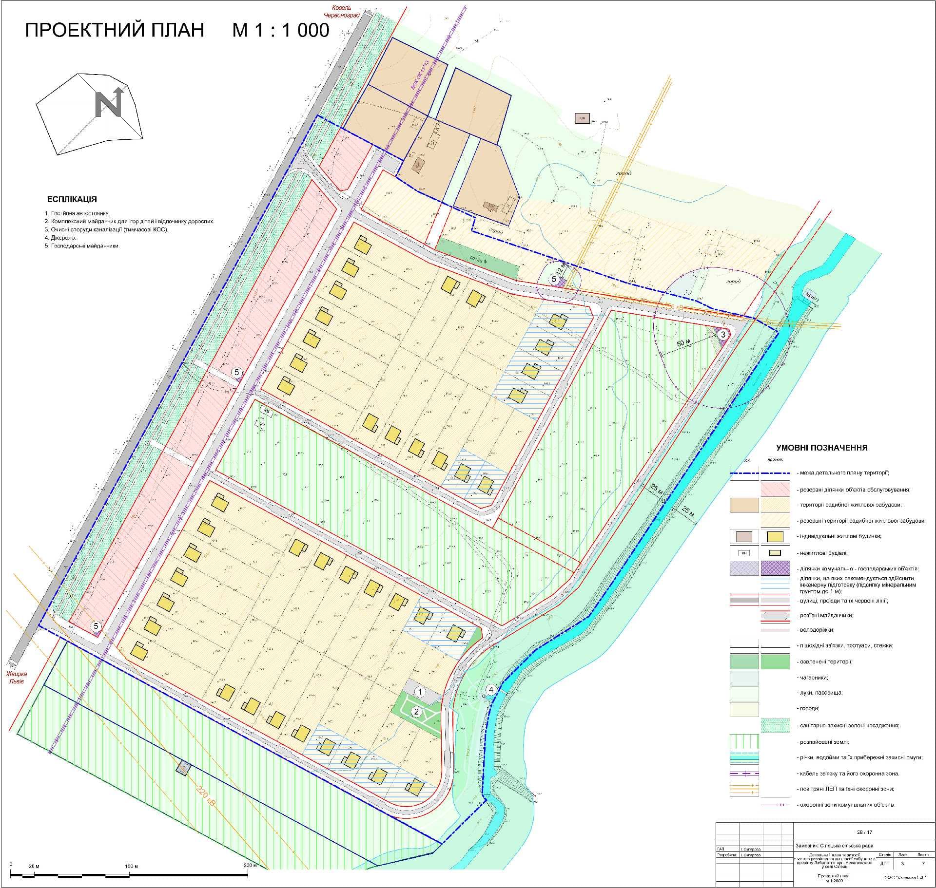
Детальний план території групи індивідуальної житлової забудови в с.Сілець присілок Заболотня ( в районі ж/б № 308-а) в с. Сілець присілок Заболотня Сілецької сільської ради Сокальського району
Детальний план території групи індивідуальної житлової забудови в с.Сілець присілок Заболотня ( в районі ж/б № 308-а) в с. Сілець присілок Заболотня Сілецької сільської ради Сокальського району