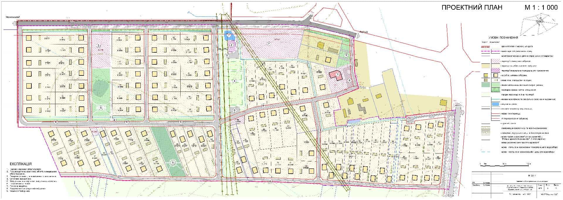
Детальний план території на вул. Шахтарській в селі Бендюга Сокальського району з метою будівництва житлових будинківОпубліковано: 04.11.2021Поділитись