Детальний план території садибної забудови в південній частині села Рудка Червоноградської територіальної громади Червоноградського району Львівської області
Поділитись
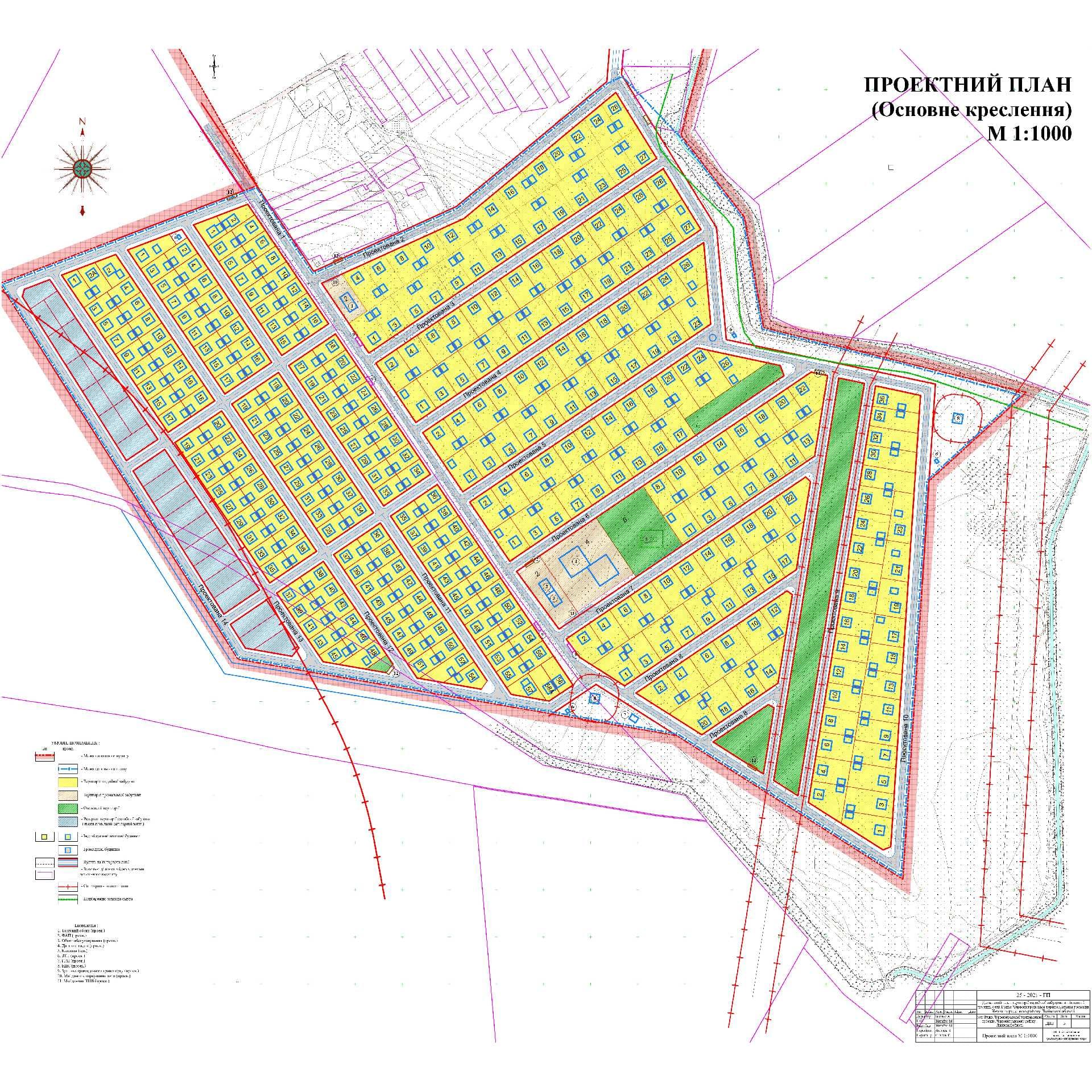
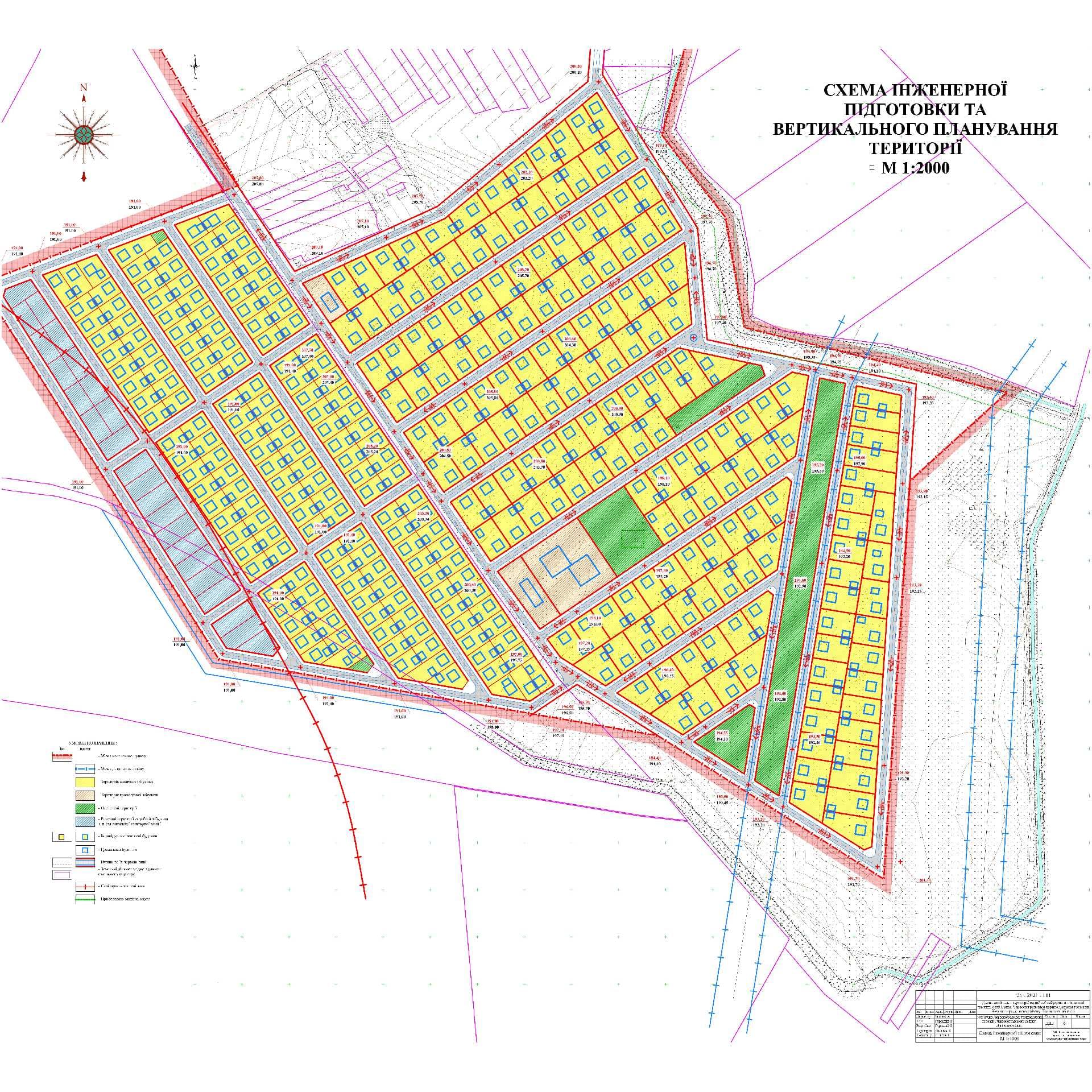
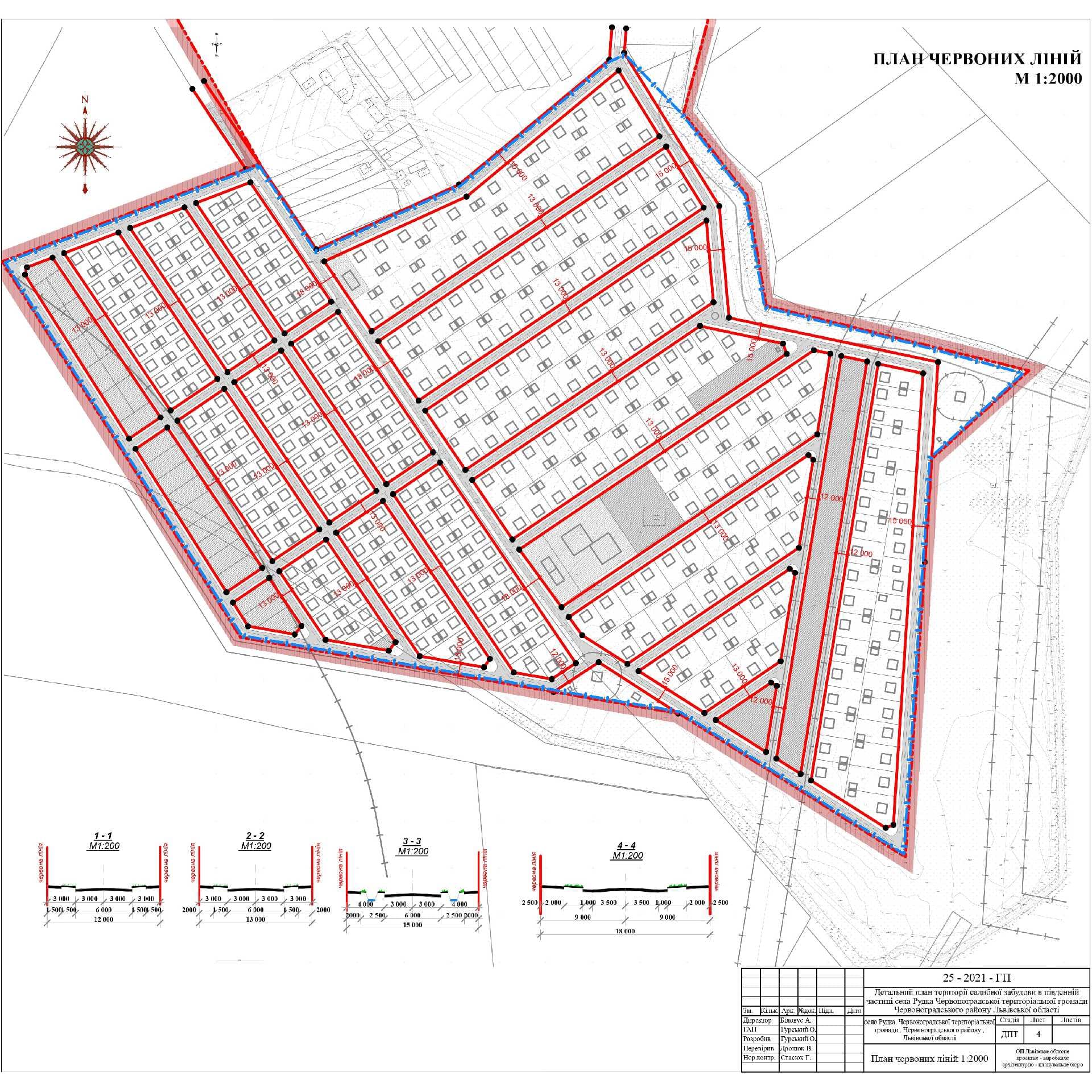
Детальний план території садибної забудови в південній частині села Рудка Червоноградської територіальної громади Червоноградського району Львівської області , затверджений рішенням Червоноградської міської ради від 21.12.2023 № 2222
Файли:




