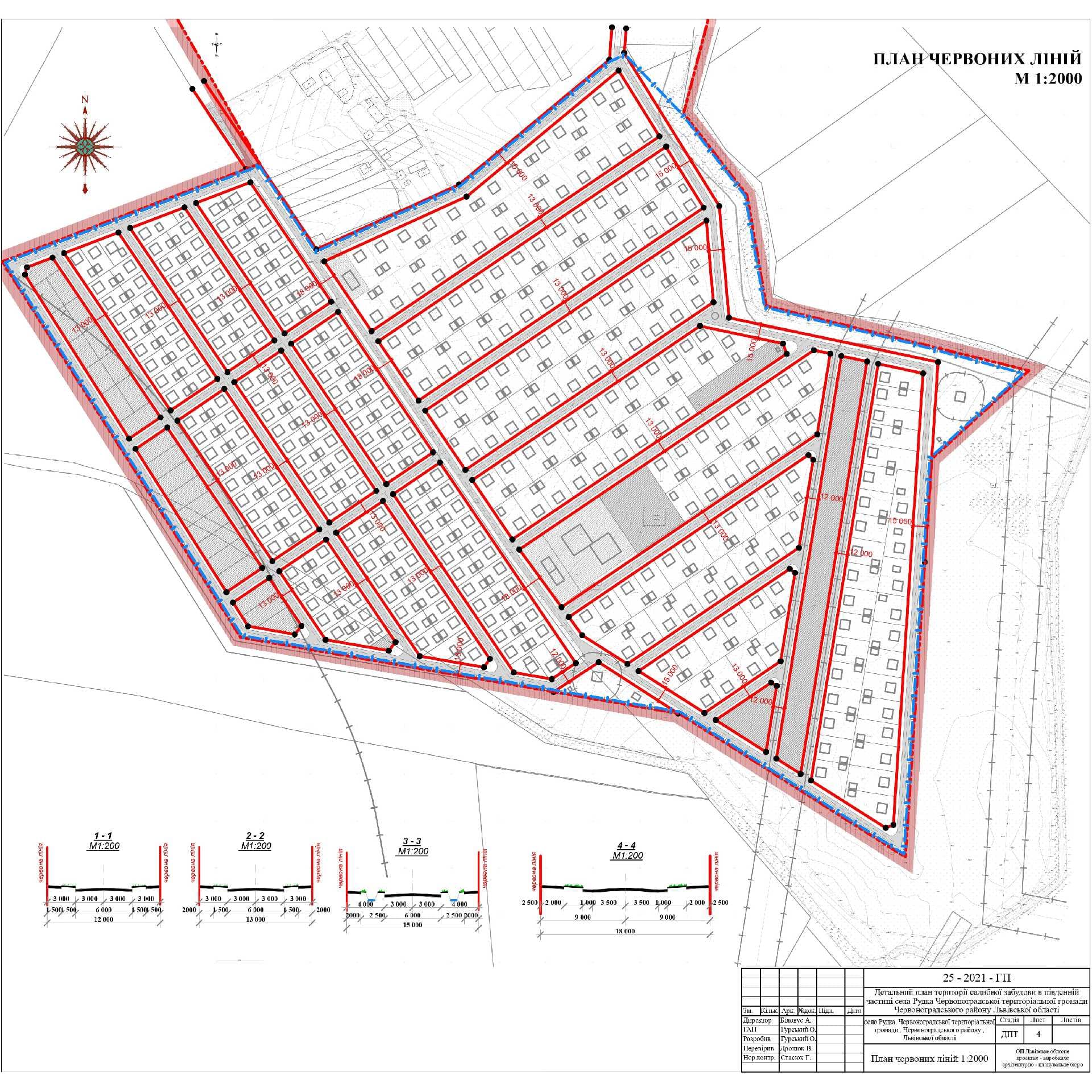
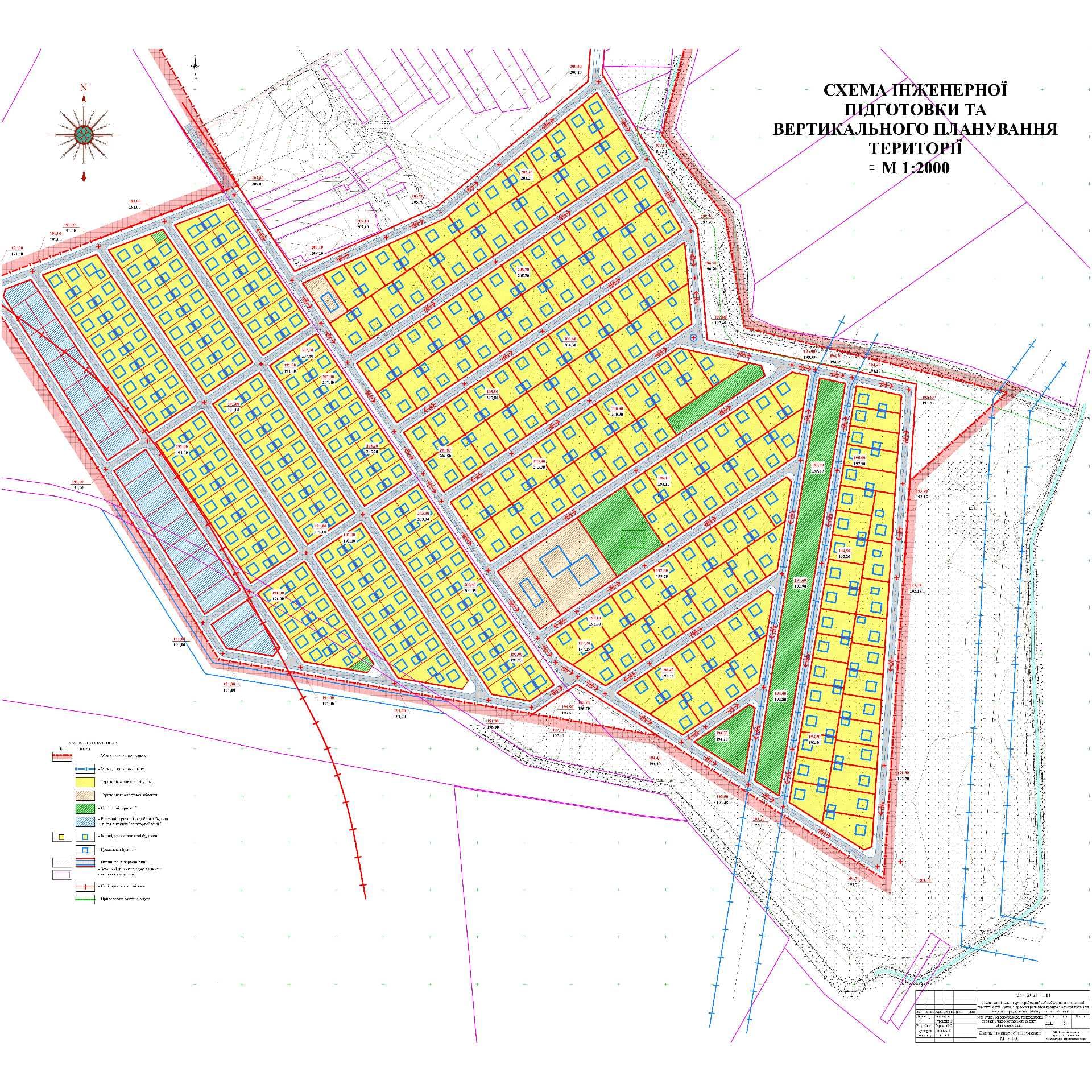
Детальний план території садибної забудови в південній частині села Рудка Червоноградської територіальної громади Червоноградського району Львівської області
Поділитись
Детальний план території садибної забудови в південній частині села Рудка Червоноградської територіальної громади Червоноградського району Львівської області розроблений згідно рішення Червоноградської міської ради від 01.04.2021 № 311
Файли:




